News

Browse All News

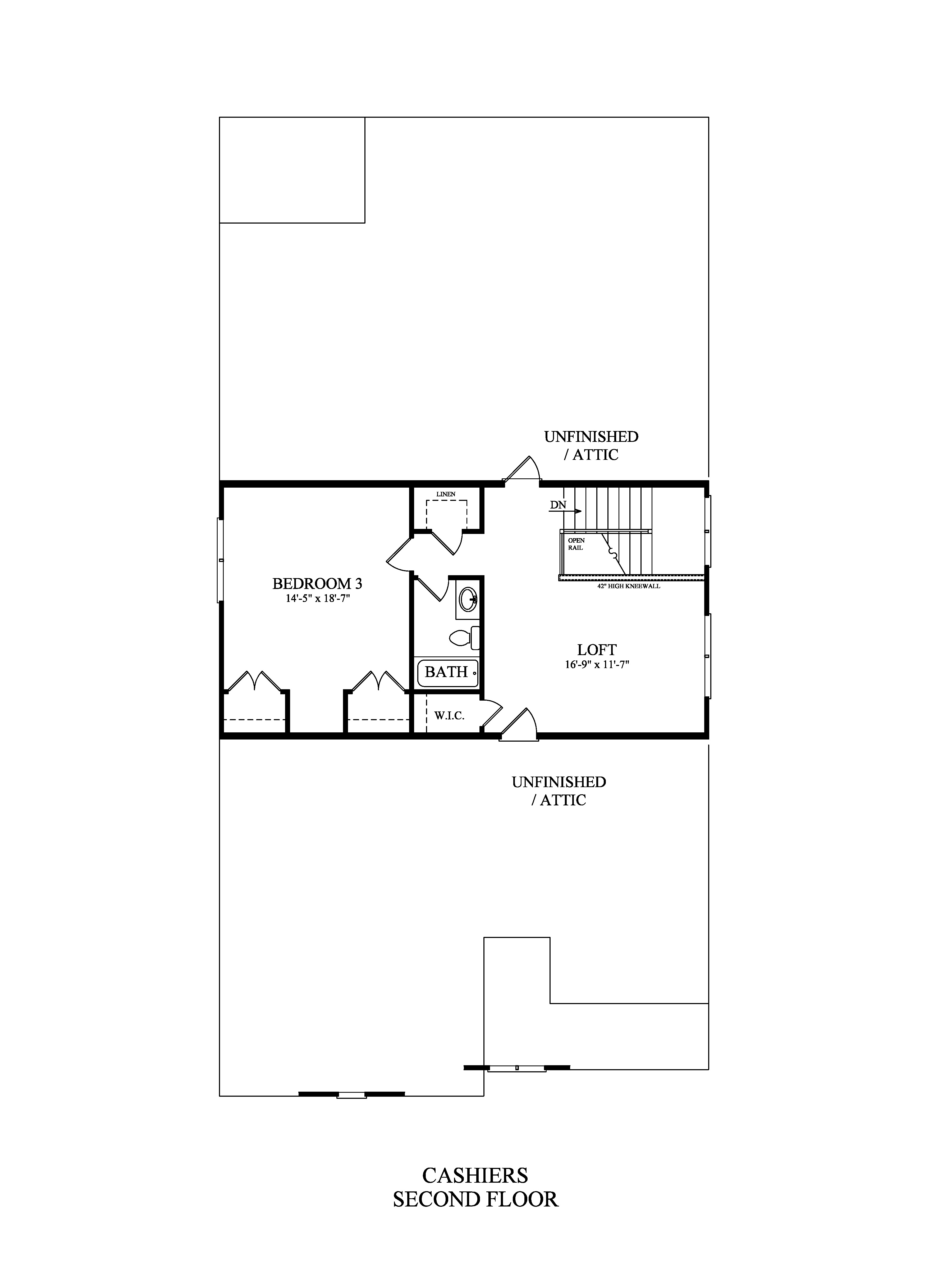
Cashiers 2nd Floor Plan